Mapa   Ficha
OPORTUNIDAD DE REFORMA EN LUMINOSA QUINTA PLANTA EN ALMAGRO
Madrid (CHAMBERÍ) - REF. 1884

71 m2

2

1

5
venta: 796.000 €
Descripción

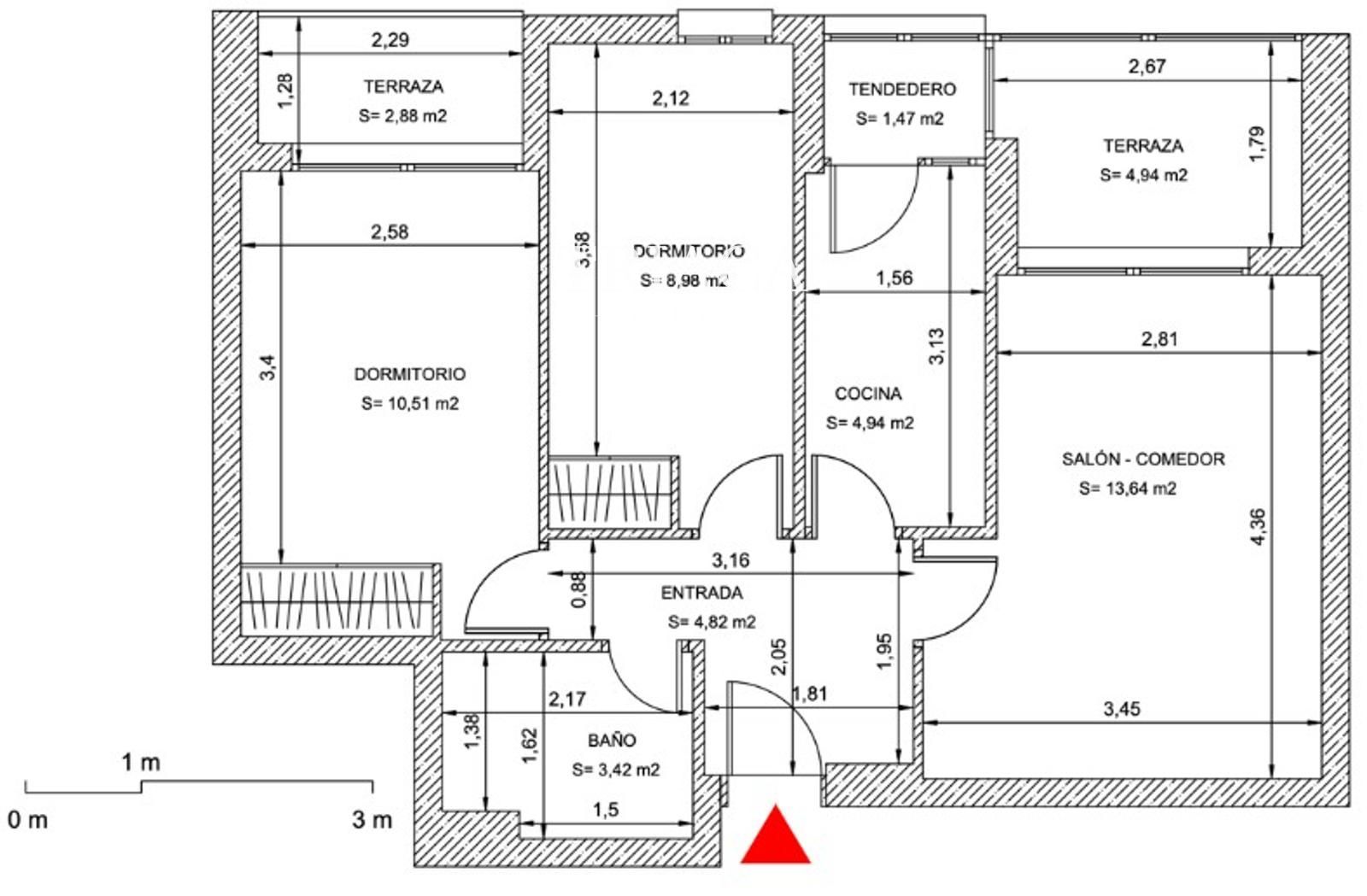
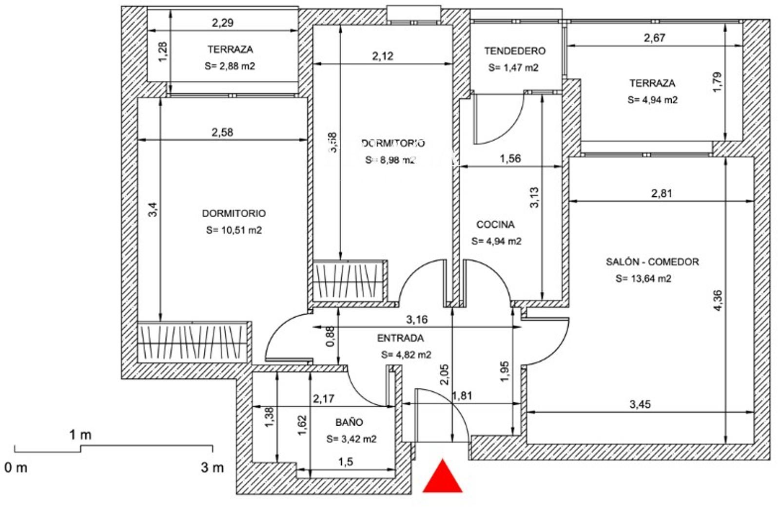
En el prestigioso barrio de Almagro, una de las zonas más codiciadas de Madrid, se encuentra esta vivienda de 71 m² situada en la quinta planta exterior de un edificio clásico con ascensor.


La distribución actual incluye un salón comedor con buena luz natural, cocina independiente, dos dormitorios y un baño, ofreciendo múltiples posibilidades de redistribución para aprovechar al máximo cada metro cuadrado.


Gracias a su orientación este, la vivienda recibe luz natural durante gran parte del día, creando espacios luminosos y agradables. Su ubicación en planta alta garantiza tranquilidad y vistas despejadas.


Se encuentra a reformar, lo que supone una oportunidad excepcional para quienes desean personalizar su vivienda en una de las direcciones más exclusivas de la capital, ya sea para uso propio o como inversión.


Una ocasión única para crear un hogar a medida en el corazón de Almagro, rodeado de embajadas, galerías de arte, restaurantes de prestigio y excelentes comunicaciones.

Características
Precio Venta 796.000 €
Construidos 71 m2
Precio/m² 11.211
Dormitorios 2
Baños 1
Amueblado
Cocina Amueblada
Terraza
Altura/Planta 5
Estado A Reformar
Ascensor
Aire acondicionado
Calificación Energética En trámite
Luz
Gas
Agua
Ubicación
La dirección del inmueble es aproximada.
Escalas de eficiencia



Contáctanos

Si deseas más información sobre esta propiedad, por favor, rellena el formulario.

 Sí, he leído y/o acepto las Condiciones de uso y la Política de privacidad
Inmuebles similares:
 
720.000 €
Ref. 1920  56 m2  2  2

Piso de 56 m² en Lista, 2 dorm. con baño, salón y cocina integrada. Finca clásica de 1939 con ascensor, conserje y calefacción central.

 
699.000 €
Ref. 1915  50 m2  2  1

Vivienda de 50 m² en Goya, 2 dorm., 1 baño, planta baja interior con ascensor. Finca clásica de 1928, calefacción comunitaria, orientación oeste.