Mapa   Ficha
RECOLETOS: PISO EN ESQUINA CON 11 BALCONES EN FINCA HISTÓRICA
Madrid (SALAMANCA) - REF. 1846

292 m2

4

4

2
venta: 4.990.000 €
Descripción

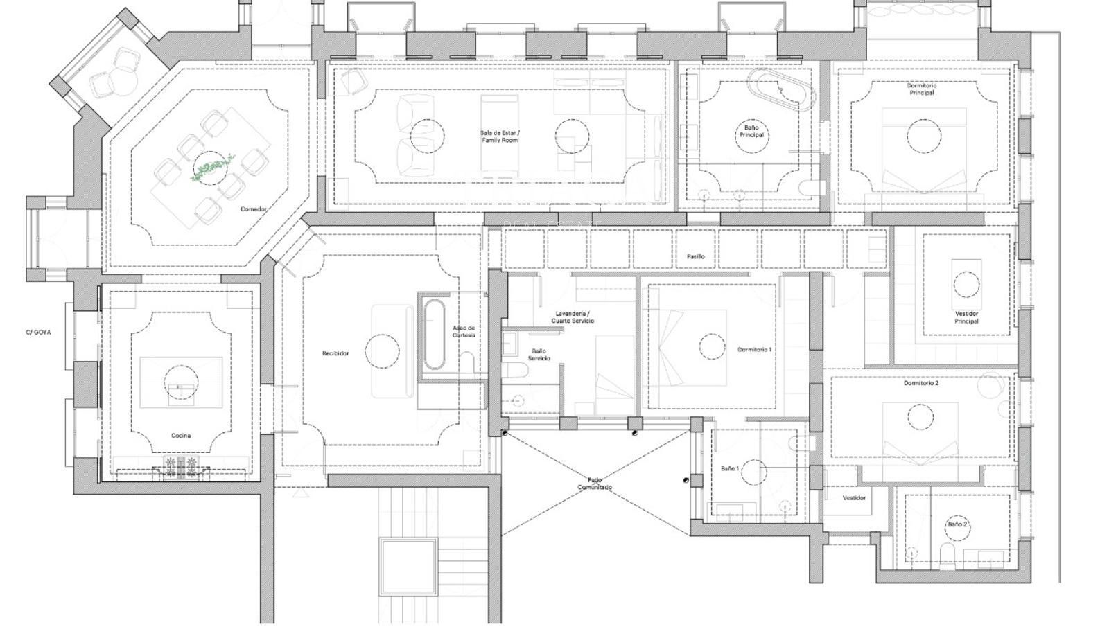
Ubicada en una segunda planta exterior de una finca representativa de 1908 con ascensor, esta singular vivienda de 292 m² ofrece una oportunidad única para reformar y crear una residencia de lujo a medida en una de las zonas más exclusivas de Madrid.


La propiedad, situada en esquina, cuenta con 11 balcones exteriores que inundan la vivienda de luz natural y ofrecen vistas despejadas a dos calles. Su orientación noreste garantiza una agradable luminosidad durante gran parte del día.


Actualmente distribuida en 4 dormitorios, 4 baños (incluyendo un cuarto de servicio), la vivienda presenta una planta versátil y amplios ventanales que realzan su carácter señorial.


Ideal para quienes buscan una propiedad con historia, personalidad y excelente ubicación en el corazón de Recoletos, a pocos pasos del Parque del Retiro, boutiques de lujo y restaurantes emblemáticos.

Características
Precio Venta 4.990.000 €
Año de construcción 1908
Construidos 292 m2
Precio/m² 17.089
Dormitorios 4
Baños 4
Amueblado
Cocina Amueblada
Calefacción Central
Terraza
Altura/Planta 2
Estado A Reformar
Ascensor
Aire acondicionado
Calificación Energética En trámite
Luz
Gas
Agua
Conserje
Ubicación
La dirección del inmueble es aproximada.
Escalas de eficiencia



Contáctanos

Si deseas más información sobre esta propiedad, por favor, rellena el formulario.

 Sí, he leído y/o acepto las Condiciones de uso y la Política de privacidad
Inmuebles similares:
 
5.500.000 €
Ref. 1902  280 m2

Vivienda de 280 m² en Ibiza, planta 27 y última, con terraza, garaje y trastero. Obra nueva a entregar en octubre, única por planta.

 
5.395.000 €
Ref. 1830  323 m2  3  4

Piso de 323 m² en Recoletos, 3 dorm. en suite, aseo, trastero, calefacción central con contador, portero. Finca de 1947, orientación sur, muy luminoso.