Mapa   Ficha
EXCLUSIVA VIVIENDA DE LUJO CON PLAZA DE GARAJE EN RECOLETOS
Madrid (SALAMANCA) - REF. 1909

487 m2

4

5

1

5
venta: 7.990.000 €
Descripción

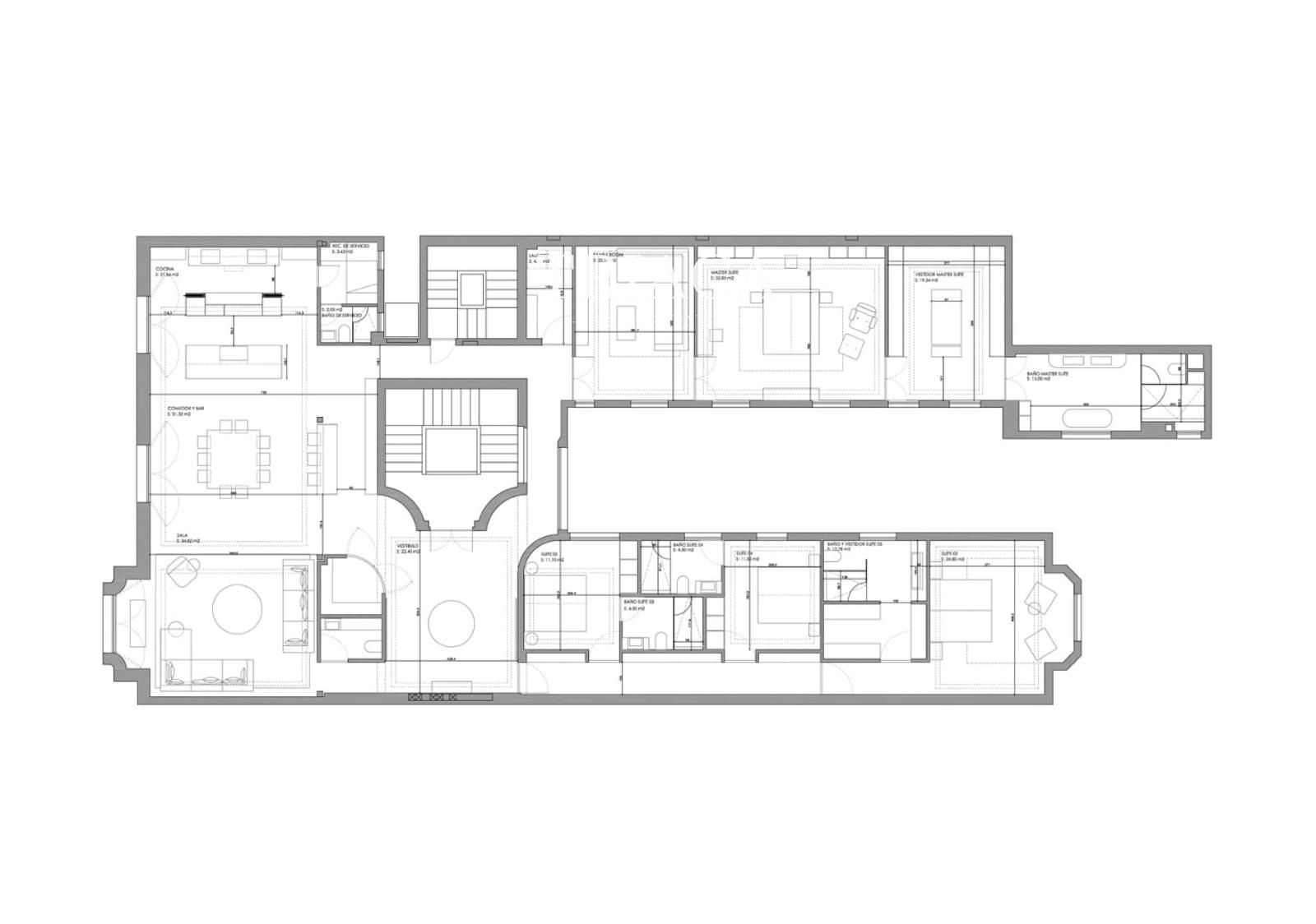
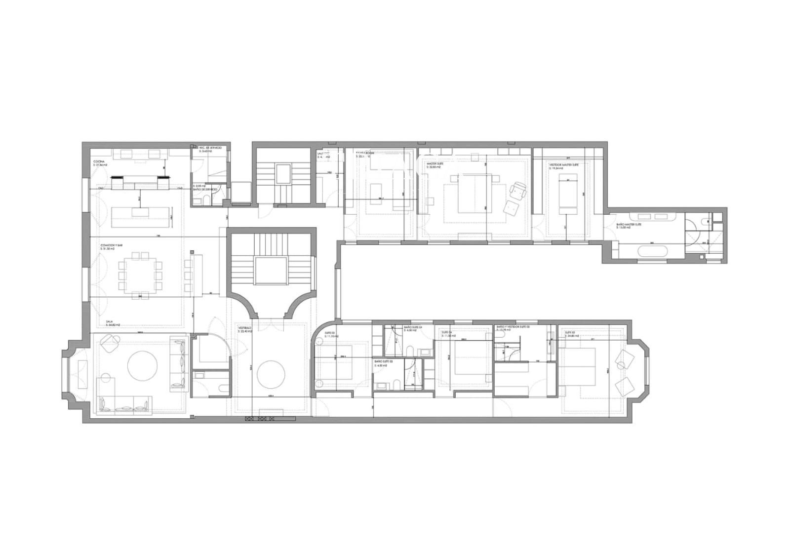
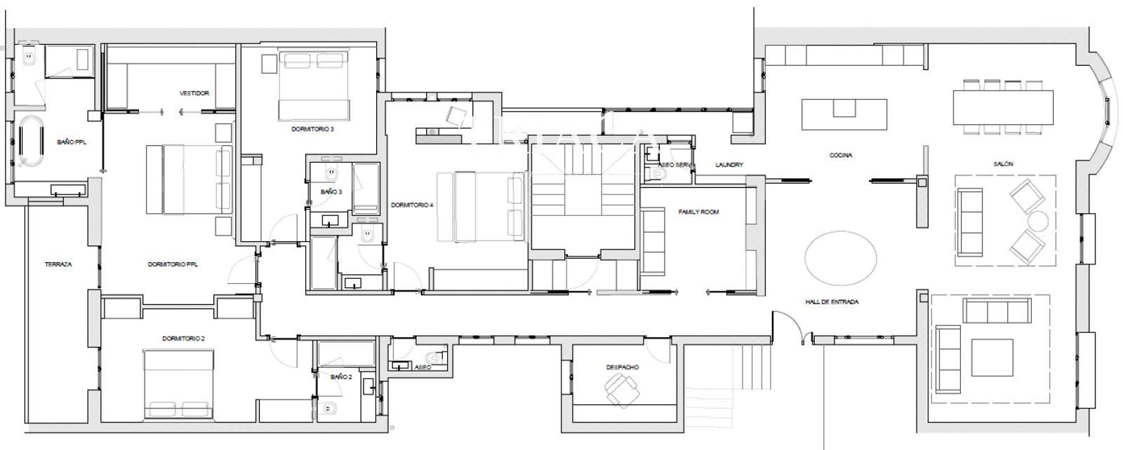
En el corazón del barrio de Recoletos se encuentra esta extraordinaria vivienda de 487 m², situada en la quinta planta de una finca clásica con portal de carruajes y portero uniformado. Una propiedad única que combina la majestuosidad de la arquitectura clásica con un diseño contemporáneo y acabados de máxima calidad.


La distribución de la vivienda es impecable: gran hall de entrada que conduce a un enorme salón principal, cocina de diseño equipada con electrodomésticos Gaggenau, family room independiente, cuatro dormitorios en suite, aseo de invitados, cuarto gabanero, dormitorio de servicio también en suite y una práctica zona de lavandería.


La reforma ha cuidado cada detalle con materiales de primer nivel: suelos de espiga en roble natural, grifería Axor y decoración de diseño con mobiliario incluido. El resultado es un hogar sofisticado, elegante y listo para entrar a vivir.


Además, la vivienda dispone de calefacción central, entrada de servicio, trastero y plaza de garaje en la misma finca, aportando comodidad y valor añadido. Su orientación norte garantiza una luminosidad uniforme y equilibrada en todas las estancias.


Una oportunidad excepcional para adquirir una de las viviendas más exclusivas de Madrid, en una de las direcciones más cotizadas y prestigiosas del barrio de Salamanca.

Características
Precio Venta 7.990.000 €
Precio/m² 16.407
Construidos 487 m2
Dormitorios 4
Baños 5
Amueblado
Cocina Amueblada
Calefacción Central
Trastero
Altura/Planta 5
Estado Nuevo
Ascensor
Aire acondicionado
Garaje
Calificación Energética En trámite
Luz
Gas
Agua
Conserje
Ubicación
La dirección del inmueble es aproximada.
Escalas de eficiencia



Contáctanos

Si deseas más información sobre esta propiedad, por favor, rellena el formulario.

 Sí, he leído y/o acepto las Condiciones de uso y la Política de privacidad
Inmuebles similares:
 
7.850.000 €
Ref. 2288  431 m2  5  5

Exclusiva vivienda reformada de 451 m², terraza ajardinada de 43 m², cuatro dormitorios con posibilidad de 5 y ubicación privilegiada en Castellana.

 
7.850.000 €
Ref. 2160  501 m2  4  6

Vivienda a estrenar en Castellana, 451 m² + terraza 50 m², finca clásica, 4 suites, family room, 3 salones, amueblada y con ascensor. Lujo absoluto.