Mapa   Ficha
VIVIENDA EXTERIOR CON TERRAZA A REFORMAR EN GOYA
Madrid (SALAMANCA) - REF. 1949

108 m2

3

2

3
venta: 950.000 €
Descripción

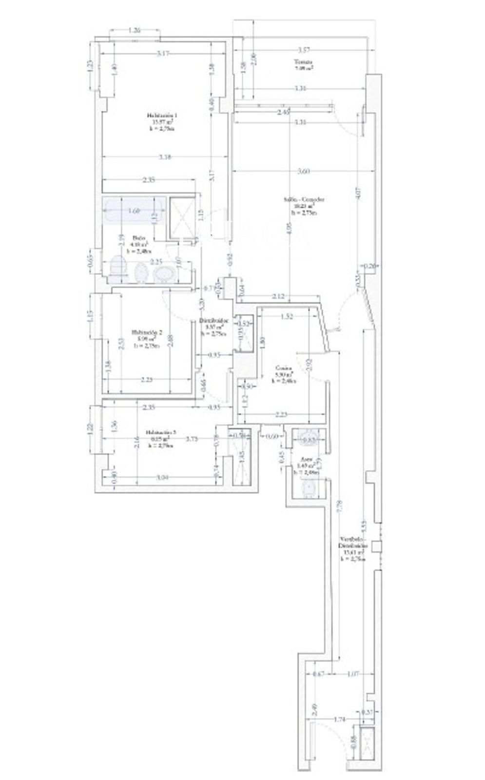
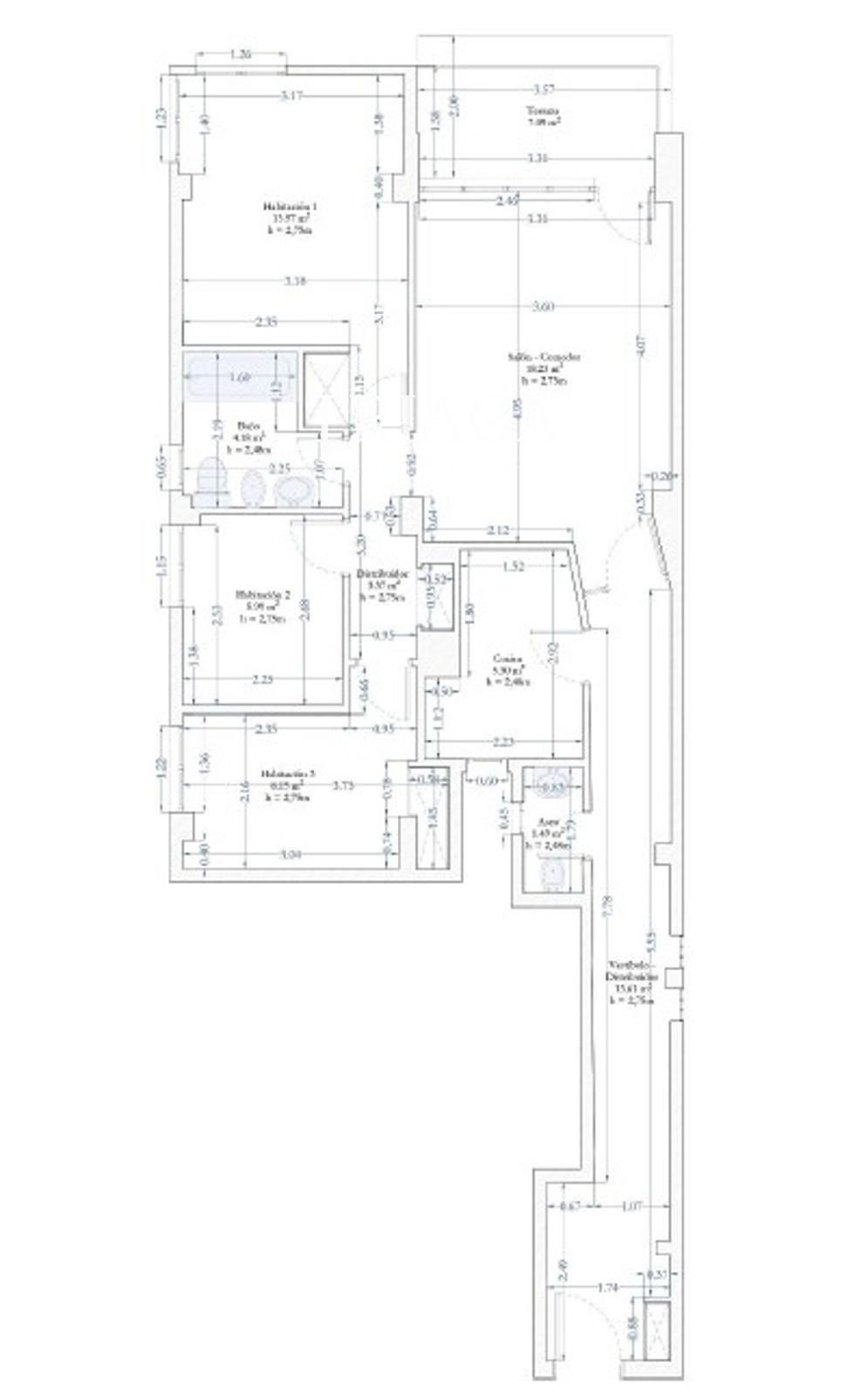
Magnífica propiedad de 108 m², situada en una tercera planta exterior de una finca representativa de 1965, ubicada en el prestigioso barrio de Goya, dentro del Barrio de Salamanca.


La vivienda, a reformar, ofrece una excelente oportunidad para crear un hogar a medida en una de las zonas más cotizadas de Madrid. Actualmente cuenta con tres dormitorios, un baño completo, un aseo de cortesía y una terraza privada, perfecta para disfrutar del aire libre. Su orientación norte y sur garantiza luminosidad y ventilación cruzada durante todo el día.


La finca dispone de dos ascensores y servicio de conserjería, lo que aporta comodidad y seguridad a sus residentes.


Gracias a su planta regular y su gran potencial de redistribución, esta propiedad puede transformarse en una vivienda moderna, funcional y elegante, manteniendo el carácter del entorno.


Una oportunidad excepcional para invertir o vivir en el corazón de Goya, rodeado de boutiques, restaurantes, zonas verdes y excelentes conexiones con toda la ciudad.

Características
Precio Venta 950.000 €
Construidos 108 m2
Precio/m² 8.796
Dormitorios 3
Baños 2
Amueblado
Cocina Amueblada
Terraza
Altura/Planta 3
Estado A Reformar
Ascensor
Aire acondicionado
Calificación Energética En trámite
Luz
Gas
Agua
Conserje
Ubicación
La dirección del inmueble es aproximada.
Escalas de eficiencia



Contáctanos

Si deseas más información sobre esta propiedad, por favor, rellena el formulario.

 Sí, he leído y/o acepto las Condiciones de uso y la Política de privacidad
Inmuebles similares:
 
1.025.000 €
Ref. 1991  108 m2  3  3

Piso exterior de 108 m² en Goya, 3ª planta, orientación sur. 3 hab. (2 en suite), 3 baños. Luminoso, funcional y en zona prime del Barrio de Salamanca.

 
850.000 €
Ref. 1966  67 m2  2  2

Vivienda exterior de 67 m² en Goya, 6ª planta muy luminosa. 2 dormitorios, 2 baños y orientación norte, a pocos pasos del Parque del Retiro.