Mapa   Ficha
VIVIENDA LUMINOSA CON BALCONES Y TRES DORMITORIOS EN LISTA
Madrid (SALAMANCA) - REF. 2353

115 m2

3

3

4
venta: 1.620.000 €
Descripción

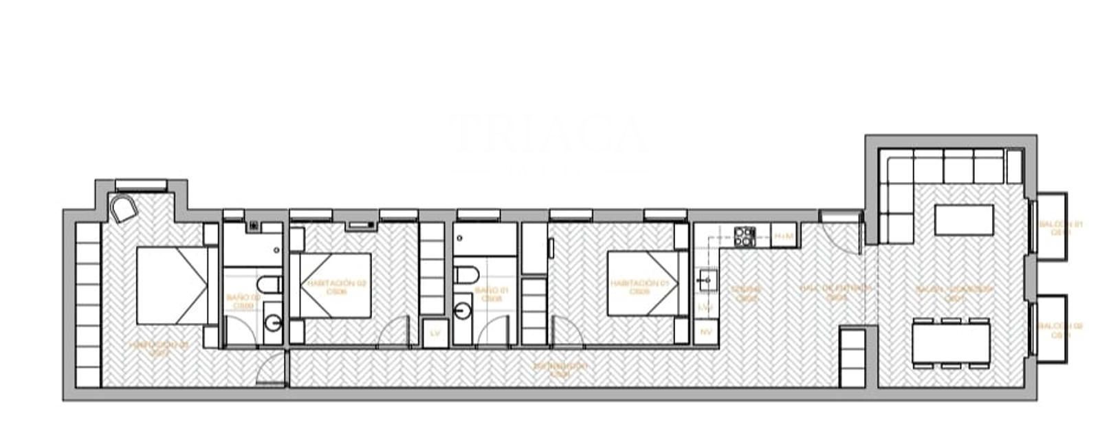
Exclusiva vivienda exterior ubicada en el barrio de Lista, en pleno distrito de Salamanca, una de las zonas más demandadas de Madrid por su excelente ubicación y calidad de vida.


Situada en una cuarta planta, la propiedad cuenta con 115 m² y destaca por su magnífica orientación oeste, que aporta una agradable luz natural durante toda la tarde.


La zona de día se compone de un amplio salón-comedor con cocina semiintegrada y dos balcones al exterior, creando un espacio abierto, luminoso y muy acogedor.


La zona de descanso dispone de tres dormitorios, destacando el principal con baño en suite, mientras que los otros dos comparten un segundo baño completo.


Actualmente en proceso de reforma y a punto de finalizar, esta vivienda representa una excelente oportunidad para estrenar una propiedad de diseño en pleno Barrio de Salamanca.


Características
Precio Venta 1.620.000 €
Precio/m² 14.087
Construidos 115 m2
Dormitorios 3
Baños 3
Cocina Amueblada
Terraza
Altura/Planta 4
Estado A Reformar
Ascensor
Aire acondicionado
Calificación Energética En trámite
Luz
Agua
Conserje
Ubicación
La dirección del inmueble es aproximada.
Escalas de eficiencia



Tu agente
Marketing (Venta)
Contáctanos

Si deseas más información sobre esta propiedad, por favor, rellena el formulario.

 Sí, he leído y/o acepto las Condiciones de uso y la Política de privacidad
Inmuebles similares:
 
1.660.000 €
Ref. 2354  111 m2  2  2

Vivienda reformada de 111 m² en Lista, Salamanca, 3ª planta sur, 2 dormitorios, 2 baños, salón con cocina abierta, portero y calefacción central.


 
1.678.000 €
Ref. 2352  146 m2  3  3

Vivienda de 146 m² en Pacífico, junto al Retiro, 8ª planta, 3 dormitorios, terraza, 2 suites, portero, A/A y reforma casi terminada.