Mapa   Ficha
ÁTICO EXTERIOR CON TERRAZA EN ARGÜELLES PARA REFORMA INTEGRAL
Madrid (MONCLOA-ARAVACA) - REF. 2216

145 m2

15 m2

2

3
venta: 1.290.000 €
Descripción

Exclusivo ático exterior situado en una finca clásica de 1935 con ascensor, en el codiciado barrio de Argüelles. Una propiedad con gran encanto arquitectónico y un enorme potencial de transformación, ideal para crear una vivienda de alto nivel en una de las zonas más demandadas del distrito de Moncloa.


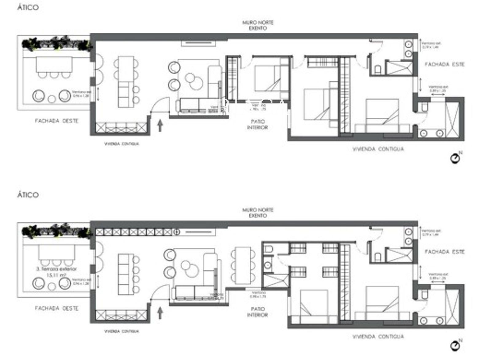
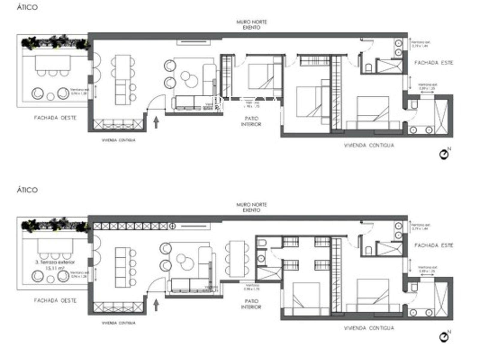
La vivienda cuenta con 145 m² construidos y destaca por su excelente luminosidad gracias a su altura y condición completamente exterior. Su elemento más atractivo es una agradable terraza de 15 m², un verdadero privilegio en la zona, perfecta para diseñar una zona chill out, comedor de verano o espacio verde privado en plena ciudad.


Actualmente el inmueble se encuentra a reformar, lo que permite replantear la distribución para adaptarla a un estilo de vida contemporáneo, potenciando los espacios abiertos y la conexión entre interior y exterior. La estructura del piso ofrece múltiples posibilidades para configurar una vivienda sofisticada y funcional, aprovechando al máximo la luz natural y las vistas despejadas.


Ubicado en un entorno residencial consolidado, rodeado de zonas verdes, edificios señoriales, comercios tradicionales y excelentes conexiones con el centro de Madrid, este ático representa una oportunidad única para invertir y crear una propiedad exclusiva con terraza en una ubicación privilegiada.

Características
Precio Venta 1.290.000 €
Precio/m² 8.897
Gastos de comunidad 193 €
I.B.I. 1.200 €
Año de construcción 1935
Construidos 145 m2
Dormitorios 2
Baños 3
Terraza
Estado A Reformar
Ascensor
Aire acondicionado
Calificación Energética En trámite
Luz
Gas
Agua
Conserje
Ubicación
La dirección del inmueble es aproximada.
Escalas de eficiencia



Contáctanos

Si deseas más información sobre esta propiedad, por favor, rellena el formulario.

 Sí, he leído y/o acepto las Condiciones de uso y la Política de privacidad
Galería
Inmuebles similares:
 
1.300.000 €
Ref. 2271  95 m2  3  2

Ático en Guindalera, 95 m² con terraza de más de 20 m². Reformado, amueblado y muy luminoso. 7ª planta exterior con ascensor.

 
1.390.000 €
Ref. 2263  177 m2  2  2

Ático en Palacio, 177 m² exteriores con balcón y orientación este-oeste. 6ª planta con ascensor y gran potencial de reforma.