Mapa   Ficha
VIVIENDA REFORMADA Y AMUEBLADA EN FINCA CLÁSICA DE JUSTICIA
Madrid (CENTRO) - REF. 2046

149 m2

3

2

1
venta: 1.260.000 €
Descripción
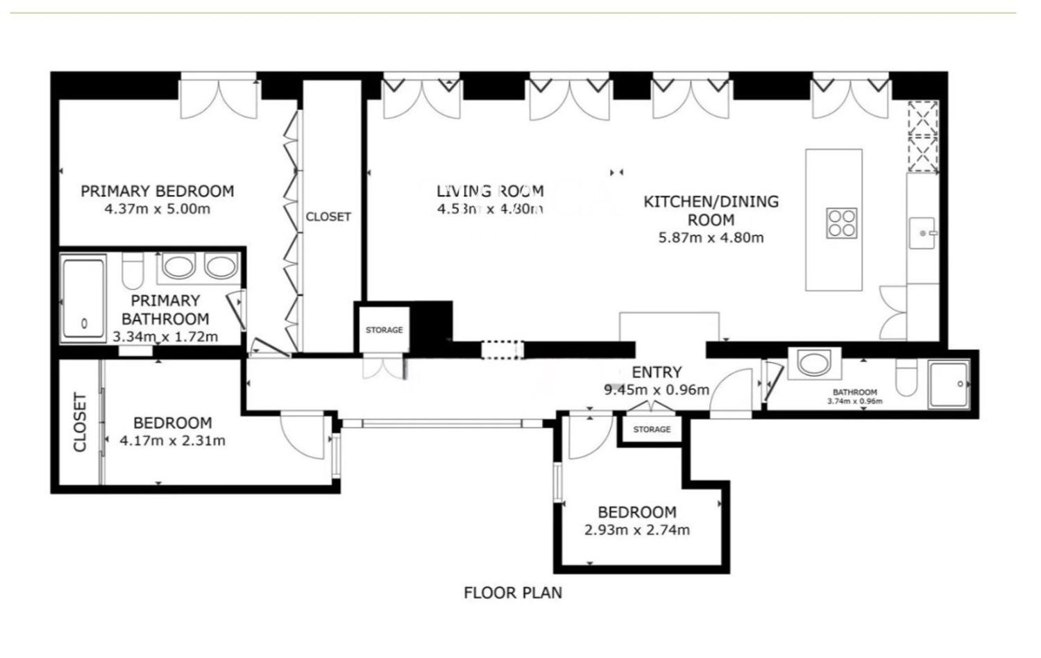
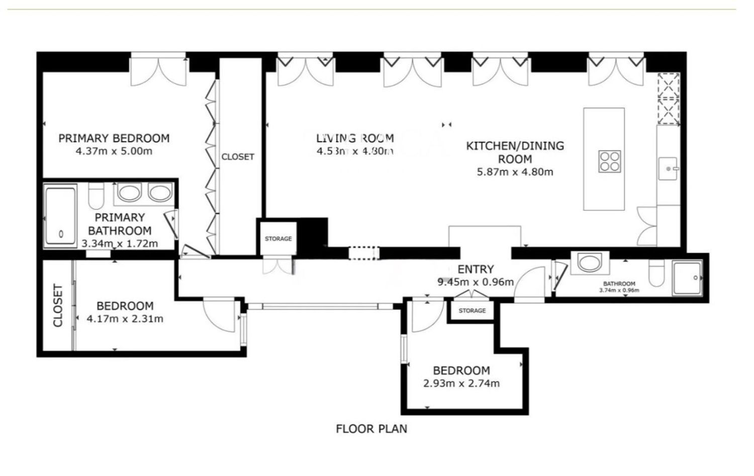
Exclusiva propiedad de 149 m² construidos (137 m² útiles), situada en una primera planta exterior con ascensor, dentro de una finca clásica de 1900 cuidadosamente conservada, en el prestigioso barrio de Justicia, una de las zonas más deseadas del centro de Madrid.

La vivienda, reformada y amueblada con un estilo contemporáneo y elegante, combina el encanto de la arquitectura clásica con el confort moderno. Dispone de tres dormitorios, uno de ellos con baño, y dos baños completos, además de un amplio salón-comedor con grandes ventanales que aportan luminosidad y amplitud.

La cocina, moderna y totalmente equipada, se integra de forma funcional en el espacio, mientras que los armarios empotrados y la calefacción central por gas garantizan comodidad y practicidad.

Con orientación norte y acabados de alta calidad, esta vivienda ofrece una atmósfera sofisticada y acogedora, ideal para quienes buscan diseño, confort y ubicación privilegiada en el corazón de Madrid.
Características
Precio Venta 1.260.000 €
Construidos 149 m2
Útiles 137 m2
Precio/m² 8.456
Dormitorios 3
Baños 2
Amueblado
Cocina Amueblada
Calefacción Central
Altura/Planta 1
Ascensor
Aire acondicionado
Calificación Energética En trámite
Luz
Gas
Agua
Ubicación
La dirección del inmueble es aproximada.
Escalas de eficiencia



Contáctanos

Si deseas más información sobre esta propiedad, por favor, rellena el formulario.

 Sí, he leído y/o acepto las Condiciones de uso y la Política de privacidad
Inmuebles similares:
 
1.265.000 €
Ref. 1989  137 m2  3  3
Piso exterior reformado de 137 m² en Malasaña, 2ª planta, 3 dorm., 3 baños, orientación sur. Amueblado, con ascensor y mucho estilo.
 
1.095.000 €
Ref. 2132  86 m2  2

Ático dúplex en Justicia, 86 m², este, 2 dorms, 2 baños (1 en suite), terraza, reformado y amueblado. Luminoso y exclusivo.