Mapa   Ficha
EXCLUSIVA VIVIENDA REFORMADA CON TERRAZA EN EL CORAZÓN DE LISTA
Madrid (SALAMANCA) - REF. 2006

77 m2

2

2

3
venta: 820.000 €
Descripción
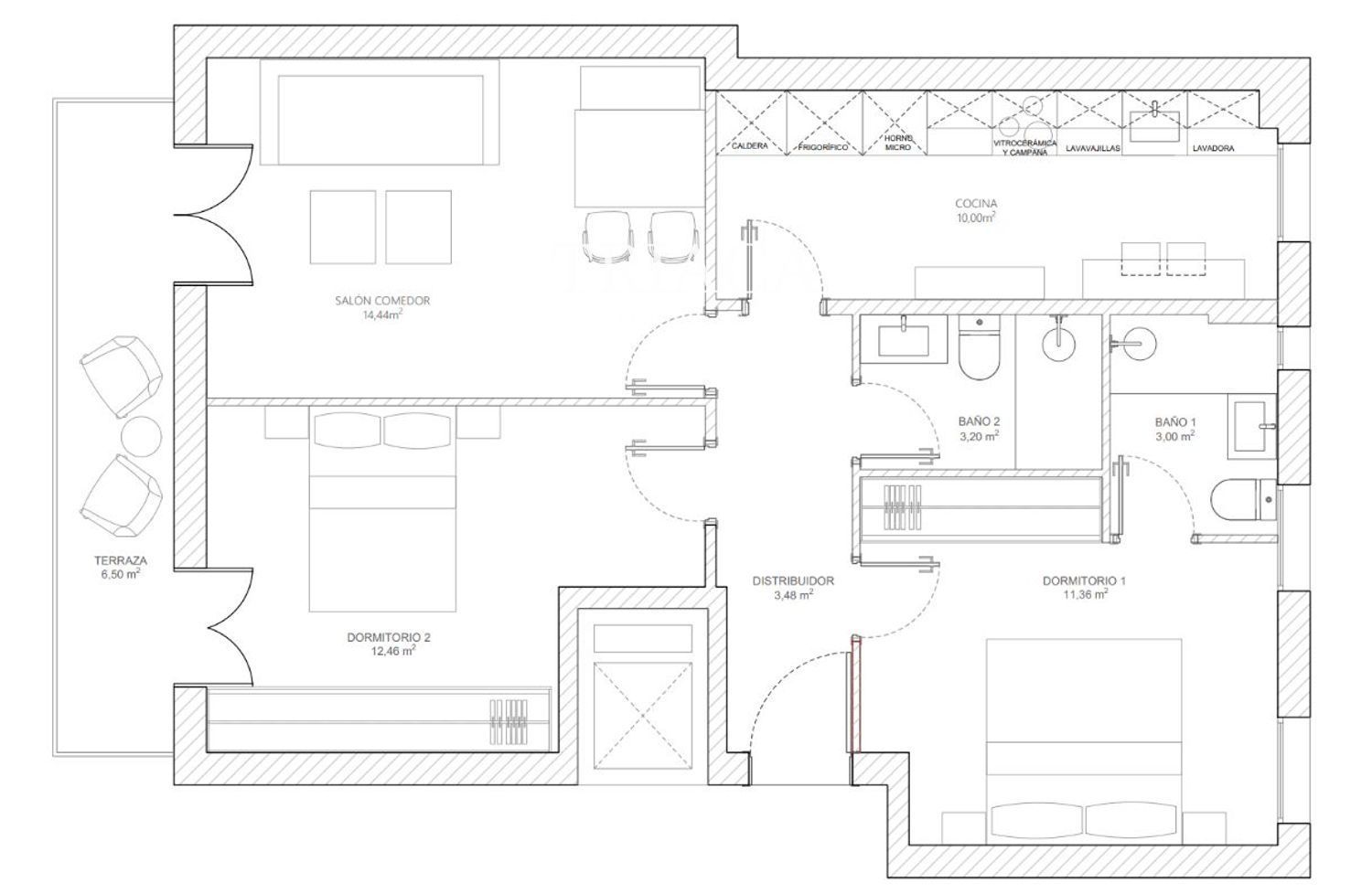
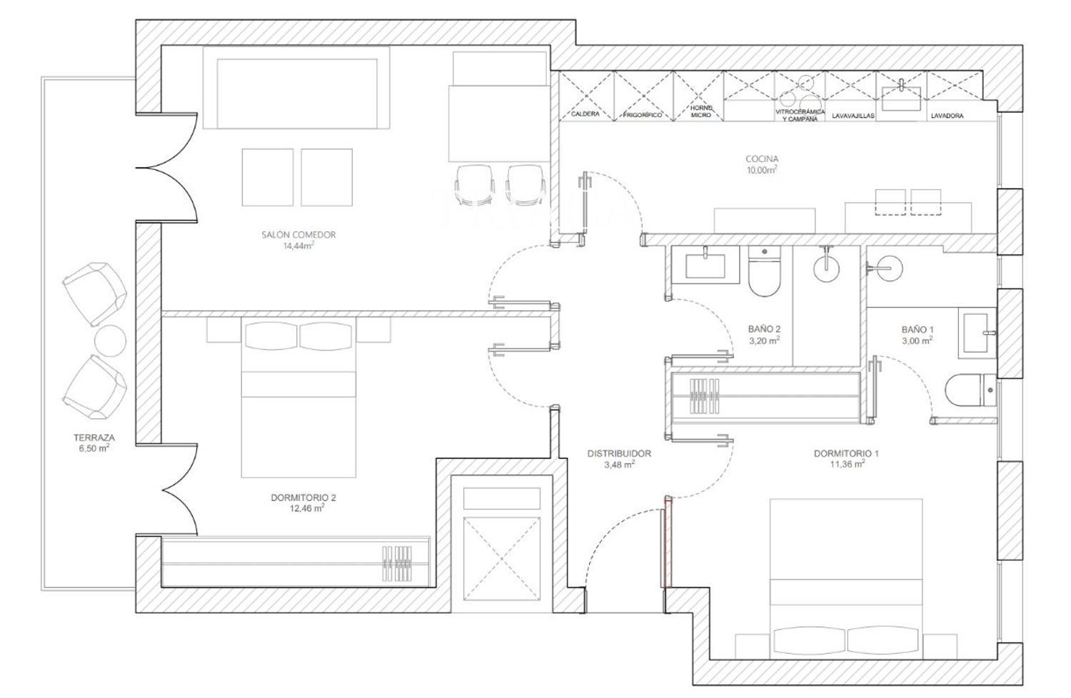
En el prestigioso Barrio de Salamanca, dentro de la codiciada zona de Lista, se encuentra esta elegante vivienda de 77 m², totalmente reformada con materiales de alta calidad y diseñada para ofrecer el máximo confort. Situada en una tercera planta exterior con ascensor, destaca por su luminosidad, gracias a su orientación este, y por su cuidada distribución que optimiza cada espacio.

El piso dispone de un amplio salón-comedor con acceso a una acogedora terraza, ideal para disfrutar del aire libre en un entorno tranquilo y exclusivo. La cocina moderna y funcional se integra de forma armoniosa, mientras que la zona de descanso cuenta con dos dormitorios, uno de ellos con baño en suite, y un segundo baño completo.

La vivienda incluye armarios empotrados, calefacción individual de gas natural y acabados de primera calidad. Una oportunidad perfecta para quienes buscan una residencia sofisticada, luminosa y lista para entrar a vivir, en una de las zonas más demandadas de Madrid.
Características
Precio Venta 820.000 €
Construidos 77 m2
Precio/m² 10.649
Dormitorios 2
Baños 2
Amueblado
Cocina Amueblada
Terraza
Altura/Planta 3
Estado Nuevo
Ascensor
Aire acondicionado
Calificación Energética En trámite
Luz
Gas
Agua
Ubicación
La dirección del inmueble es aproximada.
Escalas de eficiencia



Contáctanos

Si deseas más información sobre esta propiedad, por favor, rellena el formulario.

 Sí, he leído y/o acepto las Condiciones de uso y la Política de privacidad
Inmuebles similares:
 
920.000 €
Ref. 1995  139 m2  2  3

Piso exterior de 139 m² en Universidad, 2 dorms, 3 baños, trastero y orientación este. Elegancia y luz en finca representativa con ascensor.

 
975.000 €
Ref. 2170  155 m2  3  3

Séptima planta luminosa con 2 suites, dormitorio de servicio, cocina independiente, zona de lavandería, garaje y trastero en Estrella.