Mapa   Ficha
FUNCIONALIDAD, CONFORT Y EXCELENTE UBICACIÓN: EL CORAZÓN DE GOYA
Madrid (SALAMANCA) - REF. 1850

80 m2

2

2

2
venta: 775.000 €
Descripción
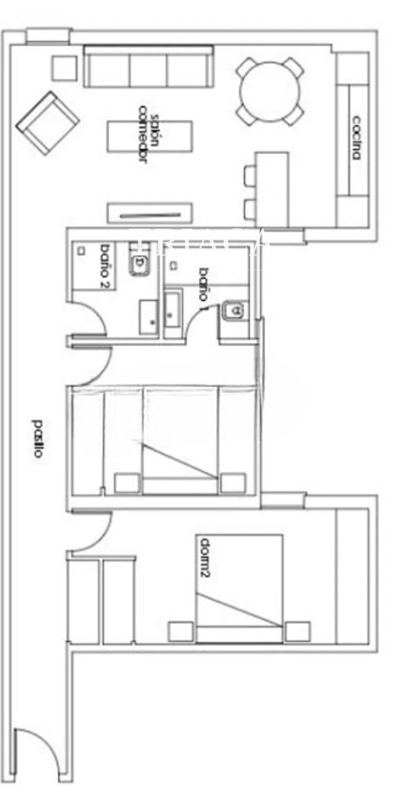
Ubicado en una tranquila segunda planta interior con ascensor, este elegante piso de 80 m² construidos ofrece una distribución práctica y equilibrada, ideal tanto para vivir como para invertir en una de las zonas más deseadas del Barrio de Salamanca.

La vivienda dispone de 2 dormitorios, siendo el principal con baño privado, y 2 baños completos en total. Cuenta con armarios empotrados y una orientación oeste, que garantiza una agradable luz natural por la tarde.

La propiedad ha sido diseñada con especial atención a la accesibilidad: tanto el acceso al edificio como la vivienda están adaptados para personas con movilidad reducida.

Incluye electrodomésticos de alta calidad en el precio (el mobiliario no está incluido), lo que permite al comprador personalizar fácilmente el espacio según sus gustos.

Una excelente oportunidad para adquirir una propiedad moderna, funcional y bien ubicada, rodeada de todos los servicios, comercios, restauración y a escasos pasos del Parque del Retiro.
Características
Precio Venta 775.000 €
Construidos 80 m2
Precio/m² 9.688
Dormitorios 2
Baños 2
Cocina Amueblada
Altura/Planta 2
Estado Nuevo
Ascensor
Aire acondicionado
Calificación Energética En trámite
Luz
Gas
Agua
Ubicación
La dirección del inmueble es aproximada.
Escalas de eficiencia



Contáctanos

Si deseas más información sobre esta propiedad, por favor, rellena el formulario.

 Sí, he leído y/o acepto las Condiciones de uso y la Política de privacidad
Inmuebles similares:
 
920.000 €
Ref. 1995  139 m2  2  3

Piso exterior de 139 m² en Universidad, 2 dorms, 3 baños, trastero y orientación este. Elegancia y luz en finca representativa con ascensor.

 
885.000 €
Ref. 2018  115 m2  3  2

Vivienda exterior de 115 m² en La Latina, muy luminosa y con orientación sur. 3 dormitorios, 2 baños y el encanto del Madrid más auténtico.