Mapa   Ficha
ÁTICO REFORMADO CON TERRAZA EN ALMAGRO: ORIENTACIÓN SUR
Madrid (CHAMBERÍ) - REF. 1973

194 m2

3

4

6
venta: 2.385.000 €
Descripción

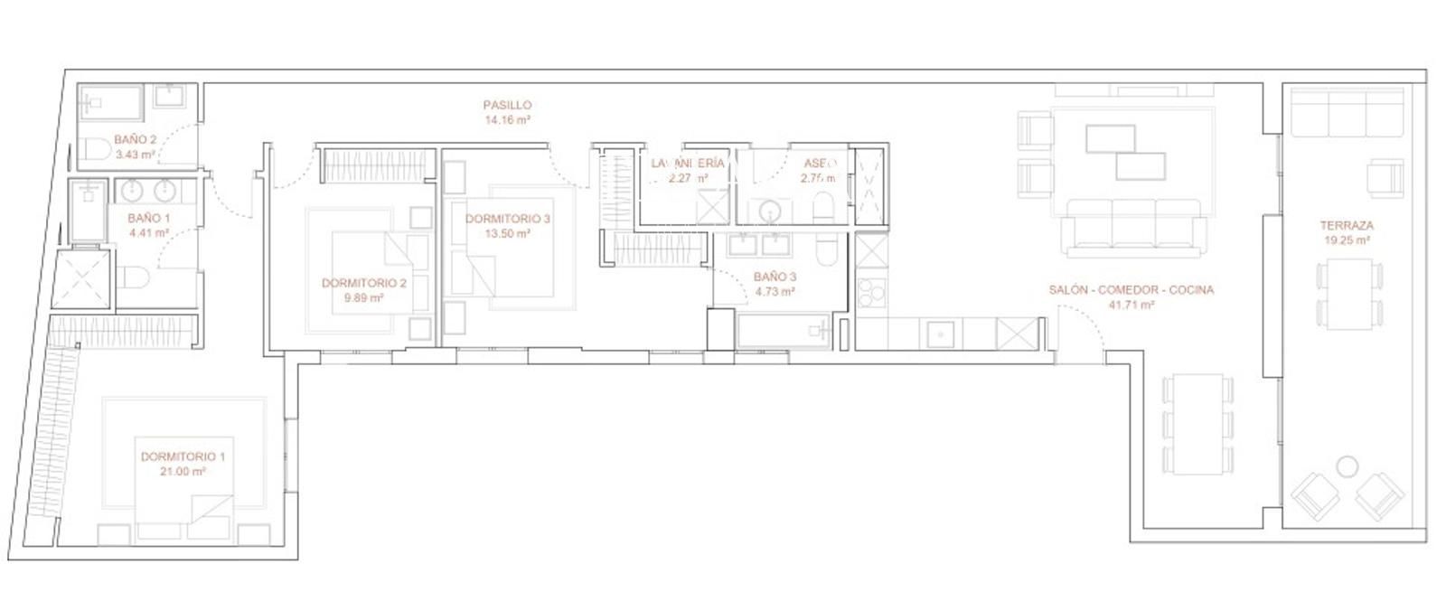
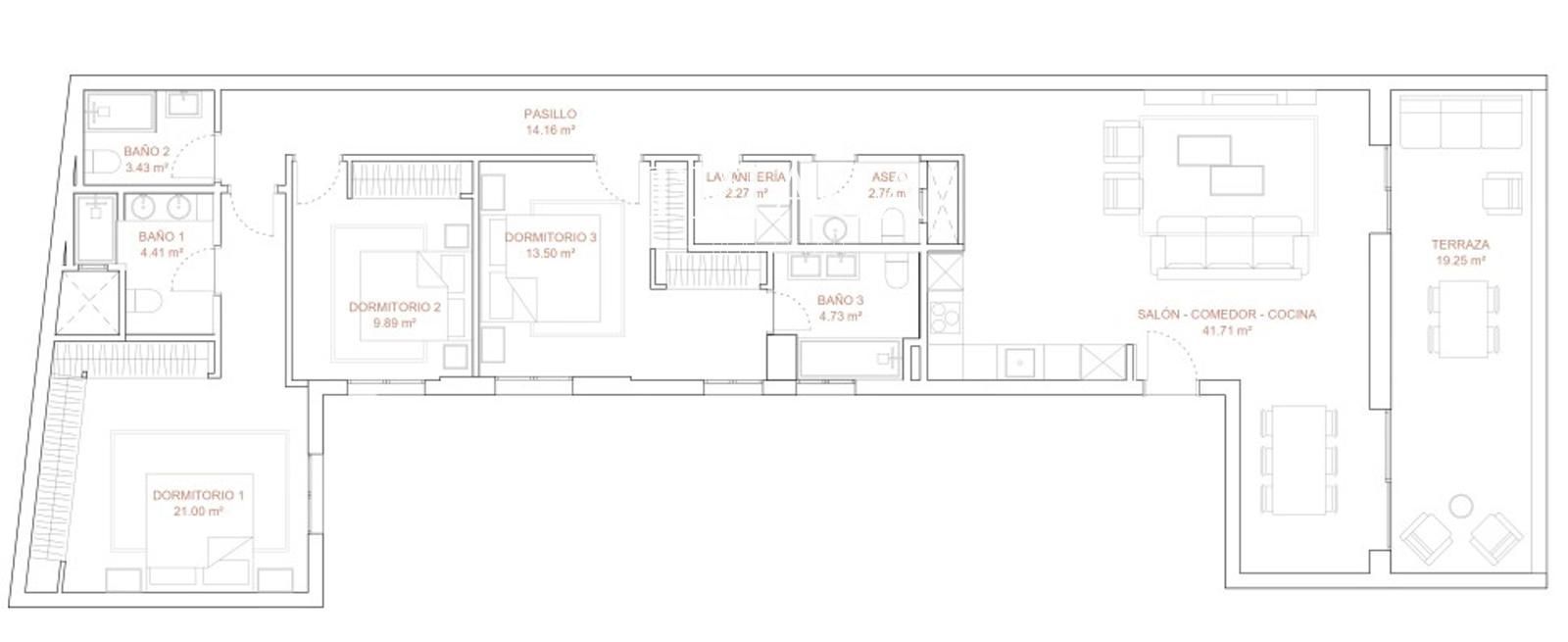
En una de las zonas más distinguidas de Chamberí, esta espectacular vivienda de 194 m² combina la exclusividad de Almagro con todas las comodidades de una reforma de alta calidad. Situada en una sexta planta exterior con orientación sur, la luz natural es protagonista en cada estancia, creando ambientes cálidos y acogedores durante todo el día.


La distribución ofrece una clara separación entre zonas sociales y privadas. La vivienda dispone de tres dormitorios amplios, tres baños completos y un aseo de cortesía, todo ello diseñado con materiales seleccionados cuidadosamente para combinar estética y funcionalidad. La zona de día destaca por su amplio salón-comedor con acceso a una terraza privada, perfecta para disfrutar del aire libre con vistas despejadas.


La cocina, equipada con electrodomésticos de alta gama, ofrece un espacio funcional y moderno. Además, la propiedad incluye un trastero, ideal para almacenamiento adicional, y el edificio cuenta con ascensor y servicio de conserjería, garantizando seguridad y comodidad.


Ubicada en una calle tranquila de Almagro, cerca de embajadas, galerías de arte y una cuidada oferta gastronómica, esta propiedad representa una oportunidad única para vivir con estilo y calidad en el centro de Madrid.

Características
Precio Venta 2.385.000 €
Construidos 194 m2
Precio/m² 12.294
Dormitorios 3
Baños 4
Amueblado
Cocina Amueblada
Trastero
Terraza
Altura/Planta 6
Estado Nuevo
Ascensor
Aire acondicionado
Calificación Energética En trámite
Luz
Gas
Agua
Conserje
Ubicación
La dirección del inmueble es aproximada.
Escalas de eficiencia



Contáctanos

Si deseas más información sobre esta propiedad, por favor, rellena el formulario.

 Sí, he leído y/o acepto las Condiciones de uso y la Política de privacidad
Inmuebles similares:
 
2.099.000 €
Ref. 2075  162 m2  3  3

Piso reformado y amueblado en Goya, 4ª planta sur, balcón, smart home, lavado, ascensor, calefacción central y A/A en edificio de 1920.

 
2.089.000 €
Ref. 2076  162 m2  3  3

Piso reformado en Castellana, 3ª planta exterior, terraza, smart home, lavado, amueblado, calefacción central y A/A en edificio de 1966.