Mapa   Ficha
VIVIENDA SEÑORIAL A REFORMAR EN FINCA CLÁSICA DE CASTELLANA
Madrid (SALAMANCA) - REF. 1992

232 m2

5

3

4
venta: 3.500.000 €
Descripción

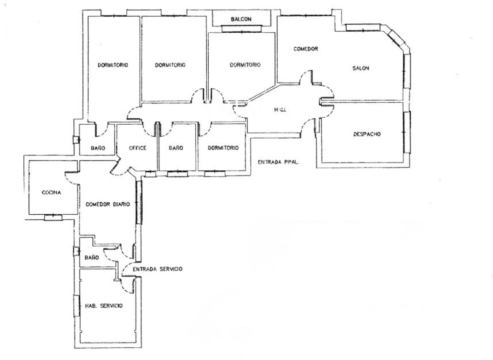
En una de las avenidas más exclusivas de Madrid, se encuentra esta magnífica vivienda de 232 m² construidos, situada en una cuarta planta exterior de una finca clásica con encanto y con servicio de conserjería. Orientada al sur y este, disfruta de una excelente luminosidad durante todo el día, realzando su carácter señorial y su enorme potencial.


El piso cuenta con cinco amplios dormitorios, tres baños completos, un espacioso salón con salida a un balcón y una distribución versátil que permite múltiples opciones de reforma. Los techos altos, los ventanales de época y los detalles arquitectónicos originales aportan un estilo distinguido y elegante, ideal para una renovación que combine la esencia clásica con las comodidades modernas.


Una oportunidad única para quienes buscan personalizar una vivienda de lujo en una de las zonas más representativas y mejor comunicadas del barrio de Salamanca.

Características
Precio Venta 3.500.000 €
Construidos 232 m2
Precio/m² 15.086
Dormitorios 5
Baños 3
Amueblado
Cocina Amueblada
Terraza
Altura/Planta 4
Estado A Reformar
Ascensor
Aire acondicionado
Calificación Energética En trámite
Luz
Gas
Agua
Conserje
Ubicación
La dirección del inmueble es aproximada.
Escalas de eficiencia



Contáctanos

Si deseas más información sobre esta propiedad, por favor, rellena el formulario.

 Sí, he leído y/o acepto las Condiciones de uso y la Política de privacidad
Galería
Inmuebles similares:
 
3.210.000 €
Ref. 2078  172 m2  3  3

Piso en reforma en Castellana, 2ª planta este, terraza, garaje, smart home, lavado, amueblado, cocina equipada, ascensor y calefacción central.

 
3.050.000 €
Ref. 2209  230 m2  3  4
Piso reformado en Goya, 230 m², 3ª planta exterior, 3 suites, 4 baños, amueblado y accesible. Amplio, cómodo y elegante.