Mapa   Ficha
VIVIENDA SEÑORIAL CON LUZ Y ELEGANCIA EN CASTELLANA
Madrid (SALAMANCA) - REF. 1996

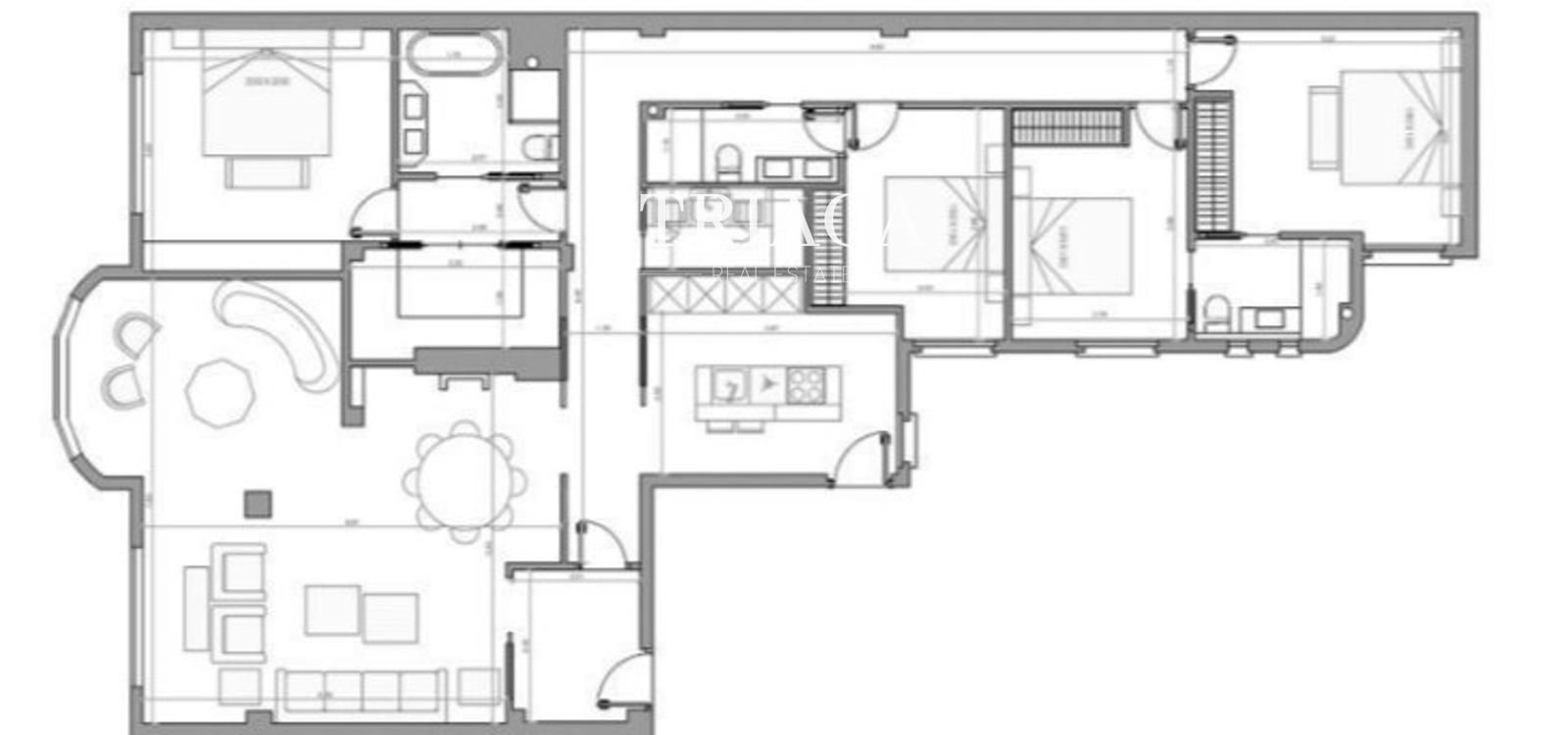
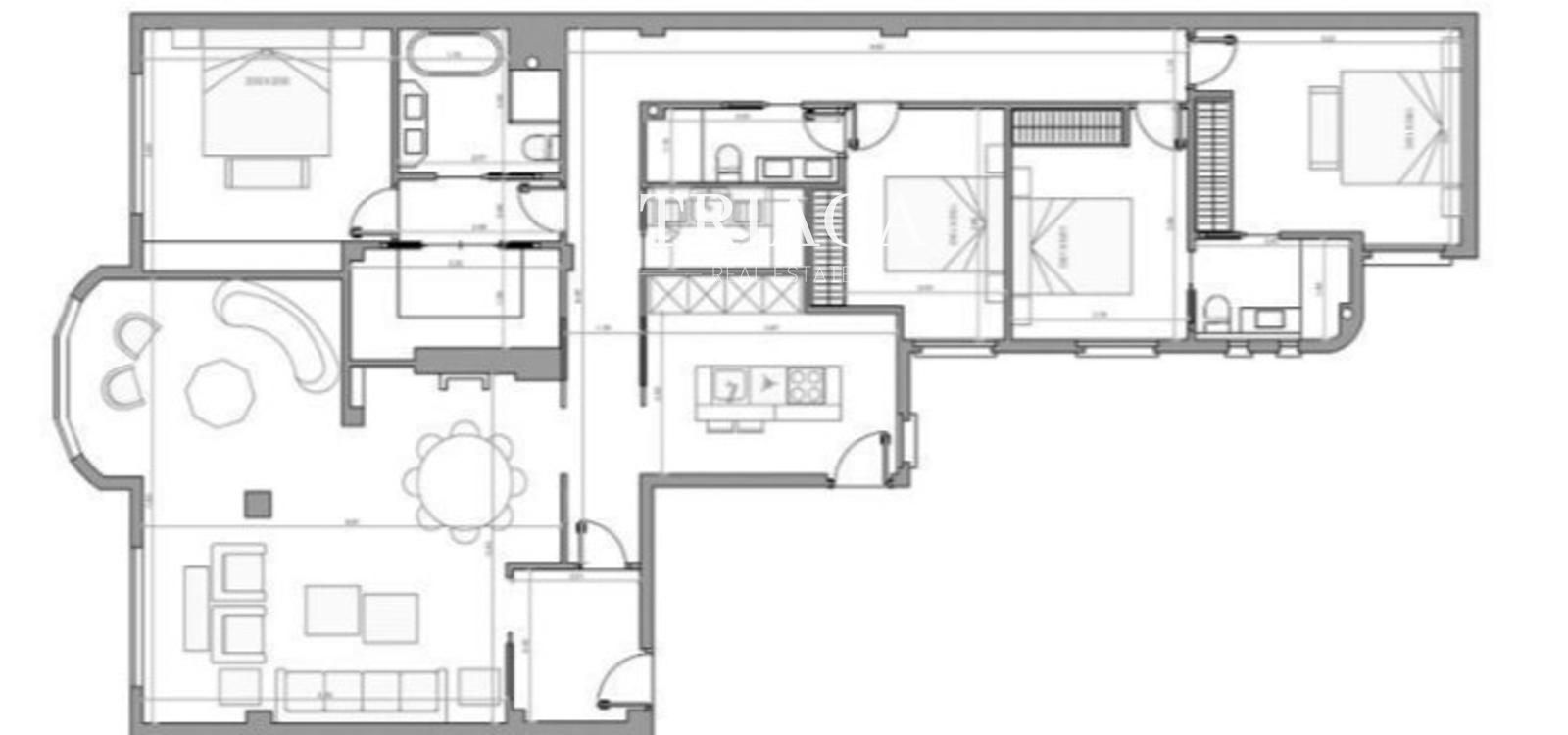
194 m2

4

3

5
venta: 3.480.000 €
Descripción

En una de las avenidas más exclusivas del barrio de Salamanca, se encuentra esta magnífica vivienda exterior de 194 m², situada en la quinta planta de una finca de ladrillo con encanto clásico y portero uniformado. Con orientación sur, la propiedad disfruta de una luz natural excepcional durante todo el día, aportando calidez y confort a cada estancia.


El piso cuenta con una distribución amplia y funcional. Dispone de cuatro dormitorios, tres baños completos y una elegante cocina independiente, ideal tanto para el uso diario como para el disfrute culinario. El dormitorio principal, exterior y con vestidor, ofrece un espacio íntimo y sofisticado.


La vivienda incluye trastero, puerta de servicio y ascensor de servicio, un detalle que añade privacidad y comodidad. Su ubicación privilegiada en Castellana, rodeada de embajadas, boutiques, restaurantes y excelentes conexiones, la convierte en una oportunidad única para quienes buscan una residencia de alto nivel en el corazón de Madrid.

Características
Precio Venta 3.480.000 €
Construidos 194 m2
Precio/m² 17.938
Dormitorios 4
Baños 3
Amueblado
Cocina Amueblada
Trastero
Altura/Planta 5
Estado Nuevo
Ascensor
Aire acondicionado
Calificación Energética En trámite
Luz
Gas
Agua
Conserje
Ubicación
La dirección del inmueble es aproximada.
Escalas de eficiencia



Contáctanos

Si deseas más información sobre esta propiedad, por favor, rellena el formulario.

 Sí, he leído y/o acepto las Condiciones de uso y la Política de privacidad
Inmuebles similares:
 
3.210.000 €
Ref. 2078  172 m2  3  3

Piso en reforma en Castellana, 2ª planta este, terraza, garaje, smart home, lavado, amueblado, cocina equipada, ascensor y calefacción central.

 
3.050.000 €
Ref. 2209  230 m2  3  4
Piso reformado en Goya, 230 m², 3ª planta exterior, 3 suites, 4 baños, amueblado y accesible. Amplio, cómodo y elegante.