Mapa   Ficha
VIVIENDA EXTERIOR DE ALTA REPRESENTACIÓN EN RECOLETOS
Madrid (SALAMANCA) - REF. 2087

238 m2

3

4

2
venta: 3.990.000 €
Descripción

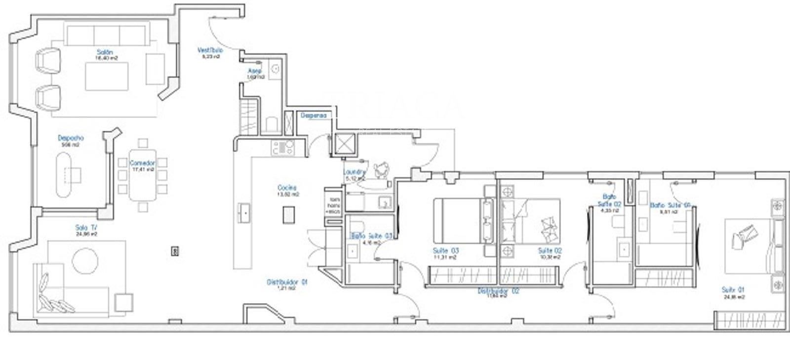
En el corazón de Recoletos, una de las zonas más exclusivas del Barrio de Salamanca, se presenta esta magnífica vivienda de 238 m², ubicada en una 2ª planta exterior con una cuidada orientación norte, que aporta luz uniforme y un ambiente sereno durante todo el día.


La distribución, amplia y equilibrada, ofrece tres dormitorios en suite, cada uno con su propio baño, garantizando privacidad y comodidad. Se suma un aseo de cortesía, ideal para recibir invitados. La zona social destaca por su amplitud y elegancia, perfecta para crear distintos ambientes y disfrutar del máximo confort.


El edificio cuenta con ascensor y se sitúa en una de las direcciones más prestigiosas de Madrid, rodeado de boutiques, restauración de alto nivel y a escasos pasos del Parque del Retiro.


Una vivienda excepcional para quienes buscan gran tamaño, exclusividad y una ubicación inmejorable en Recoletos.

Características
Precio Venta 3.990.000 €
Precio/m² 16.765
Construidos 238 m2
Dormitorios 3
Baños 4
Amueblado
Cocina Amueblada
Terraza
Altura/Planta 2
Estado Nuevo
Ascensor
Aire acondicionado
Calificación Energética En trámite
Luz
Gas
Agua
Ubicación
La dirección del inmueble es aproximada.
Escalas de eficiencia



Contáctanos

Si deseas más información sobre esta propiedad, por favor, rellena el formulario.

 Sí, he leído y/o acepto las Condiciones de uso y la Política de privacidad
Inmuebles similares:
 
3.600.000 €
Ref. 2310  228 m2  3  4

Piso en Justicia de 228 m2, 3ª planta en finca clásica, con 3 suites, techos de 3,30 m, balcones y mirador. Aerotermia, A/A Airzone, trastero y mobiliario incluido.

 
4.200.000 €
Ref. 2308  308 m2  4  3

Piso de 308 m² en 2ª planta, finca de 1905 con 1 vecino por planta. 6 balcones, orientación sur, techos de 3,10 m, buhardilla propia y portero. Vivienda señorial única.