Mapa   Ficha
EXCEPCIONAL ÁTICO DÚPLEX: PISO RECIÉN REFORMADO EN RECOLETOS
Madrid (SALAMANCA) - REF. 2191

170 m2

3

4

4
venta: 2.260.000 €
antes: 2.380.000 €
Descripción

Maravilloso dúplex ático situado en una ubicación privilegiada en el corazón de Recoletos, una de las áreas más distinguidas del Barrio de Salamanca. Este excepcional hogar, ubicado en la cuarta planta de un edificio construido en 1950 y dotado con ascensor, ha sido recientemente renovado con un exquisito gusto y está listo para ser habitado de inmediato.

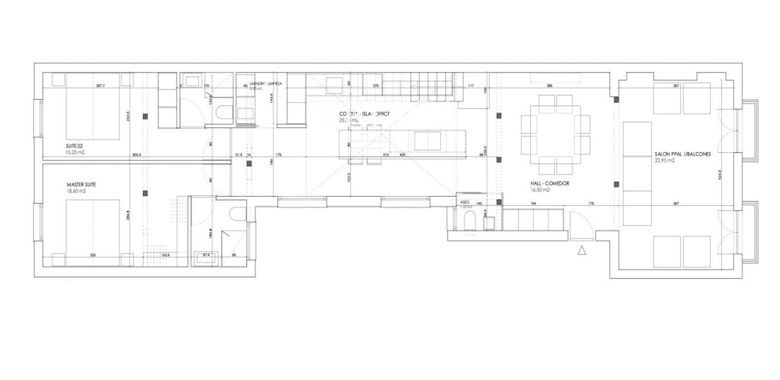
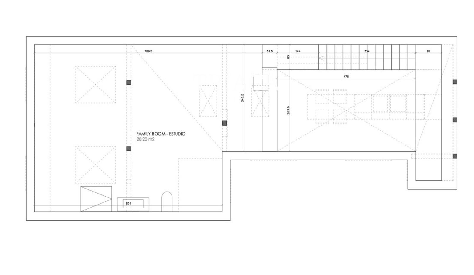
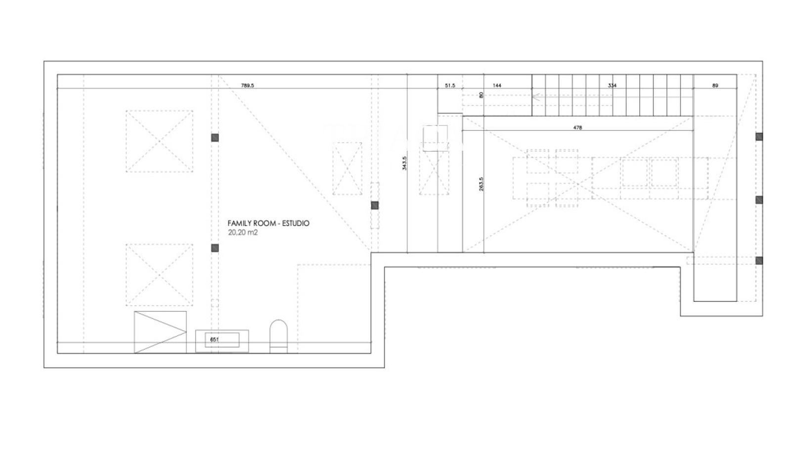
Disfrute de una abundante entrada de luz natural en cada rincón de esta residencia, gracias a sus dos encantadores balcones que se asoman a la calle. La propiedad ofrece un generoso espacio de 170m2 distribuidos en dos plantas. En la primera planta, encontrará un luminoso salón con dos balcones que ofrecen vistas a la calle, un elegante comedor, una cocina completamente equipada con una isla central, un aseo para visitas, una zona independiente de lavado y dos dormitorios, ambos con baños en suite. La planta superior, actualmente configurada como una buhardilla diáfana, ofrece la emocionante posibilidad de convertirla en un tercer dormitorio completo con su propio baño.

Esta residencia se vende completamente amueblada, lo que garantiza una transición sin problemas hacia la vida en este lujoso hogar. No pierda la oportunidad de hacer suyo este exquisito y acogedor ático dúplex en una de las zonas más prestigiosas de Madrid.

Características
Precio Venta 2.260.000 €
Precio/m² 13.294
Año de construcción 2024
Construidos 170 m2
Dormitorios 3
Baños 4
Amueblado
Cocina Amueblada
Calefacción Individual
Terraza
Altura/Planta 4
Estado Nuevo
Ascensor
Aire acondicionado
Calificación Energética En trámite
Luz
Gas
Agua
Conserje
Ubicación
La dirección del inmueble es aproximada.
Escalas de eficiencia



Contáctanos

Si deseas más información sobre esta propiedad, por favor, rellena el formulario.

 Sí, he leído y/o acepto las Condiciones de uso y la Política de privacidad
Inmuebles similares:
 
2.290.000 €
Ref. 2184  152 m2  3  3

Dúplex reformado en Recoletos, 152 m², 4ª planta este, 3 dorms, 3 baños, amueblado, lavandería y ascensor. Elegante y luminoso.

 
2.600.000 €
Ref. 2070  373 m2  4  4

Dúplex de 373 m² en Hispanoamérica con jardín, 4 dormitorios, 4 baños, orientación sur y garaje. Luz, amplitud y exclusividad en Chamartín.