Mapa   Ficha
EXCLUSIVO PISO REFORMADO CON 6 BALCONES EN ALMAGRO
Madrid (CHAMBERÍ) - REF. 2280

234 m2

3

4

3
venta: 3.100.000 €
Descripción

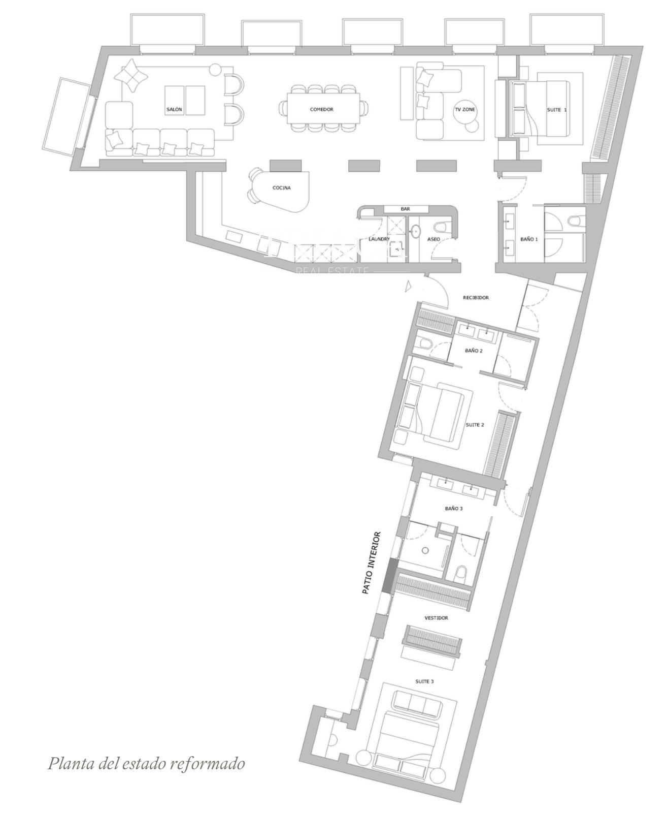
Ubicado en el exclusivo y distinguido barrio de Almagro, en el corazón de Chamberí, este excepcional proyecto residencial ha sido concebido para ofrecer una vivienda sofisticada, luminosa y perfectamente adaptada al estilo de vida contemporáneo. Situado en la tercera planta de una finca clásica señorial, el inmueble se encuentra actualmente en proceso de reforma integral, con un cuidado diseño interior que prioriza la funcionalidad, la amplitud de los espacios y el uso de materiales de la más alta calidad. La propiedad se entrega totalmente amueblada y decorada, lista para entrar a vivir.

La vivienda se caracteriza por su extraordinaria luminosidad y presencia exterior, gracias a sus seis balcones a la calle y dos elegantes miradores acristalados, que aportan carácter, amplitud visual y una conexión privilegiada con el entorno señorial que la rodea.

La distribución ha sido diseñada para ofrecer un equilibrio perfecto entre vida social, privacidad y confort:

Zona social

Un amplio y sofisticado espacio diáfano integra el salón y el comedor, creando una atmósfera elegante y contemporánea, ideal tanto para la vida diaria como para recibir invitados. Este espacio conecta de forma natural con una cocina de diseño con isla central, concebida como el verdadero corazón de la vivienda, equipada con electrodomésticos de alta gama y acabados premium.

Zona de noche

La zona privada alberga tres dormitorios en suite, diseñados para ofrecer máximo confort y privacidad. La suite principal destaca por su amplitud y por incorporar un elegante vestidor, convirtiéndose en un auténtico refugio de tranquilidad dentro de la vivienda.

Zona de servicio y ocio

La vivienda incorpora una versátil zona de bar y TV, perfecta como espacio de entretenimiento, reuniones o relax. Además, cuenta con aseo de cortesía y lavandería independiente, aportando funcionalidad y comodidad al día a día.

La finca, de estilo clásico señorial, dispone de ascensor y presenta excelentes calidades constructivas, reflejo del carácter representativo de la zona. Su ubicación en Almagro garantiza un entorno residencial distinguido, rodeado de embajadas, edificios históricos y una cuidada oferta de restauración selecta, boutiques exclusivas y servicios premium. Asimismo, ofrece excelentes comunicaciones con metro y los principales ejes de la ciudad, lo que la convierte en una opción ideal tanto como residencia habitual como inversión patrimonial.

Una propiedad única que combina arquitectura clásica, diseño contemporáneo y ubicación privilegiada, en uno de los enclaves más cotizados y elegantes de Madrid.

Características
Precio Venta 3.100.000 €
Precio/m² 13.248
Gastos de comunidad 193 €
I.B.I. 1.367 €
Año de construcción 2026
Construidos 234 m2
Dormitorios 3
Baños 4
Amueblado
Cocina Amueblada
Terraza
Altura/Planta 3
Estado Nuevo
Ascensor
Aire acondicionado
Calificación Energética En trámite
Luz
Agua
Conserje
Ubicación
La dirección del inmueble es aproximada.
Escalas de eficiencia



Contáctanos

Si deseas más información sobre esta propiedad, por favor, rellena el formulario.

 Sí, he leído y/o acepto las Condiciones de uso y la Política de privacidad
Galería
Inmuebles similares:
 
3.100.000 €
Ref. 2315  192 m2  3  4

Exclusivo piso en Recoletos con reforma en curso. Dos pisos en la misma planta con orientación este, 3 dormitorios en suite y un aseo cada uno. Diseño moderno en pleno Barrio de Salamanca.

 
3.100.000 €
Ref. 2314  192 m2  3  4

Exclusivo piso en Recoletos con reforma en curso. Dos pisos en la misma planta con orientación este, 3 dormitorios en suite y un aseo cada uno. Diseño moderno en pleno Barrio de Salamanca.