Mapa   Ficha
ELEGANTE PISO REFORMADO CON 3 DORMITORIOS EN CUATRO CAMINOS
Madrid (TETUÁN) - REF. 2287

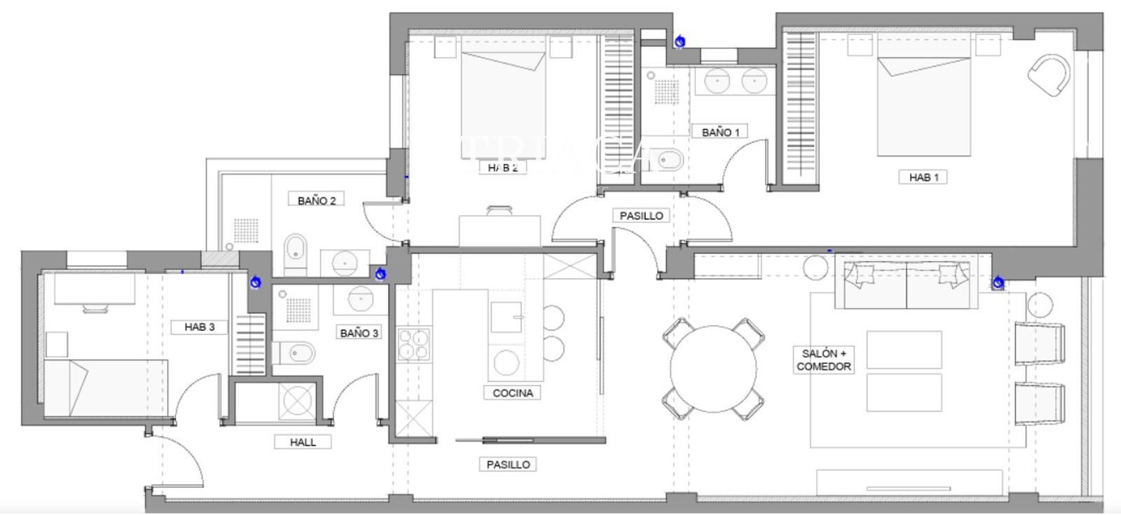
147 m2

3

3
venta: 1.390.000 €
Descripción

Ubicado en el barrio de Cuatro Caminos, esta propiedad exclusiva de 147 m² representa una oportunidad única de adquirir una vivienda de alto nivel en fase de reforma integral y en preventa, diseñada para ofrecer el equilibrio perfecto entre funcionalidad, confort y elegancia contemporánea. Situada en la segunda planta de un edificio con ascensor y portero físico, la vivienda redefine el concepto de lujo sereno en una de las zonas más demandadas de Madrid.


La zona social se articula en torno a un amplio y luminoso salón-comedor, concebido como un espacio sofisticado y acogedor que conecta con una cocina integrada pero visualmente independiente, equipada con una práctica península y encimera porcelánica de CUPA Stone. Ambas estancias se separan mediante una puerta acristalada de cerrajería a medida, que permite el paso de la luz natural mientras garantiza aislamiento acústico y olfativo, aportando funcionalidad sin renunciar al diseño.


En la zona privada, la vivienda dispone de tres amplios dormitorios, dos de ellos con baño en suite, además de un tercer baño completo de cortesía. Los baños han sido diseñados con especial atención al interiorismo, combinando revestimientos porcelánicos, azulejos decorativos, papeles de alta gama y griferías en acabado negro mate, creando espacios de estética contemporánea y gran coherencia visual.


La reforma integral, firmada por el prestigioso estudio de Mónica Diago, incorpora todas las prestaciones de una vivienda actualizada: zona de lavandería independiente, armarios de carpintería a medida, suelos laminados de alta calidad y sistema de climatización por conductos, garantizando el máximo confort en el día a día.


Con fecha de finalización prevista para finales de marzo, el calendario de visitas en obra ya está abierto según disponibilidad. La vivienda se entregará completamente amueblada y lista para entrar a vivir, ofreciendo una oportunidad excepcional para quienes buscan diseño, calidad y ubicación estratégica en el corazón del eje financiero y residencial de Madrid.

Características
Precio Venta 1.390.000 €
Precio/m² 9.456
Construidos 147 m2
Dormitorios 3
Baños 3
Estado Nuevo
Ascensor
Aire acondicionado
Calificación Energética En trámite
Luz
Agua
Conserje
Ubicación
La dirección del inmueble es aproximada.
Escalas de eficiencia



Contáctanos

Si deseas más información sobre esta propiedad, por favor, rellena el formulario.

 Sí, he leído y/o acepto las Condiciones de uso y la Política de privacidad
Inmuebles similares:
 
1.200.000 €
Ref. 2316  88 m2  3  2

Piso a estrenar en Goya. 88 m², 3 dormitorios y 2 baños. Primera planta con altura de segundo y orientación este en pleno Salamanca.

 
1.519.000 €
Ref. 2296  146 m2  3  3

Piso de 146 m² en Lista, 6ª planta, con salón y cocina abierta, 3 dormitorios y 3 baños. Amueblado, con vestidores, A/A, calefacción y ascensor. Listo para entrar a vivir.