Mapa   Ficha
EXCLUSIVA VIVIENDA EN ÚLTIMA PLANTA CON 3 SUITES EN CASTELLANA
Madrid (SALAMANCA) - REF. 2299

198 m2

3

4

7
venta: 2.950.000 €
Descripción

Presentamos esta exclusiva vivienda situada en una séptima y última planta, en el prestigioso entorno de Castellana – Núñez de Balboa, una de las ubicaciones más codiciadas del Barrio de Salamanca. Su altura privilegiada y su orientación garantizan una extraordinaria luminosidad y vistas despejadas, aportando amplitud y sensación de privacidad en pleno corazón de Madrid.


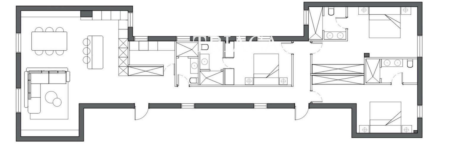
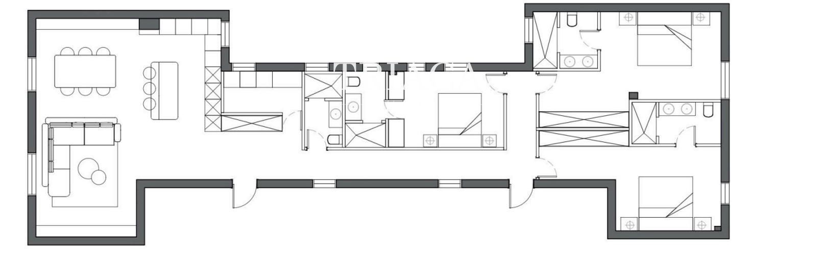
La propiedad cuenta con 198 m², ofreciendo una distribución elegante y funcional pensada para el máximo confort. La zona social se concibe como un espacio amplio y representativo, ideal tanto para la vida diaria como para recibir invitados en un entorno sofisticado.


La zona de descanso se compone de tres dormitorios en suite, que aseguran privacidad, comodidad y un alto nivel de habitabilidad. La vivienda se completa con un baño de cortesía y una zona de lavandería independiente, aportando practicidad y organización al conjunto.


El edificio dispone de servicio de portería física, reforzando la seguridad y la comodidad en el día a día.


En conjunto, se trata de una propiedad que destaca por su altura, luminosidad, amplitud y ubicación prime, ideal para quienes buscan una residencia exclusiva en una de las direcciones más representativas de Madrid.

Características
Precio Venta 2.950.000 €
Precio/m² 14.899
Gastos de comunidad 357 €
I.B.I. 1.462 €
Construidos 198 m2
Dormitorios 3
Baños 4
Amueblado
Cocina Amueblada
Altura/Planta 7
Estado Nuevo
Ascensor
Aire acondicionado
Calificación Energética En trámite
Luz
Agua
Conserje
Ubicación
La dirección del inmueble es aproximada.
Escalas de eficiencia



Contáctanos

Si deseas más información sobre esta propiedad, por favor, rellena el formulario.

 Sí, he leído y/o acepto las Condiciones de uso y la Política de privacidad
Galería
Inmuebles similares:
 
3.100.000 €
Ref. 2315  192 m2  3  4

Exclusivo piso en Recoletos con reforma en curso. Dos pisos en la misma planta con orientación este, 3 dormitorios en suite y un aseo cada uno. Diseño moderno en pleno Barrio de Salamanca.

 
3.100.000 €
Ref. 2314  192 m2  3  4

Exclusivo piso en Recoletos con reforma en curso. Dos pisos en la misma planta con orientación este, 3 dormitorios en suite y un aseo cada uno. Diseño moderno en pleno Barrio de Salamanca.